EW1

STANDORT
Bremen, Ellener Hof
NUTZUNG
MFH mit 18 Wohneinheiten
PROJEKTZEIT
April 2020 - Februar 2021
LEISTUNGSPHASE(N)
1-9
KONSTRUKTION
Holzrahmenbau
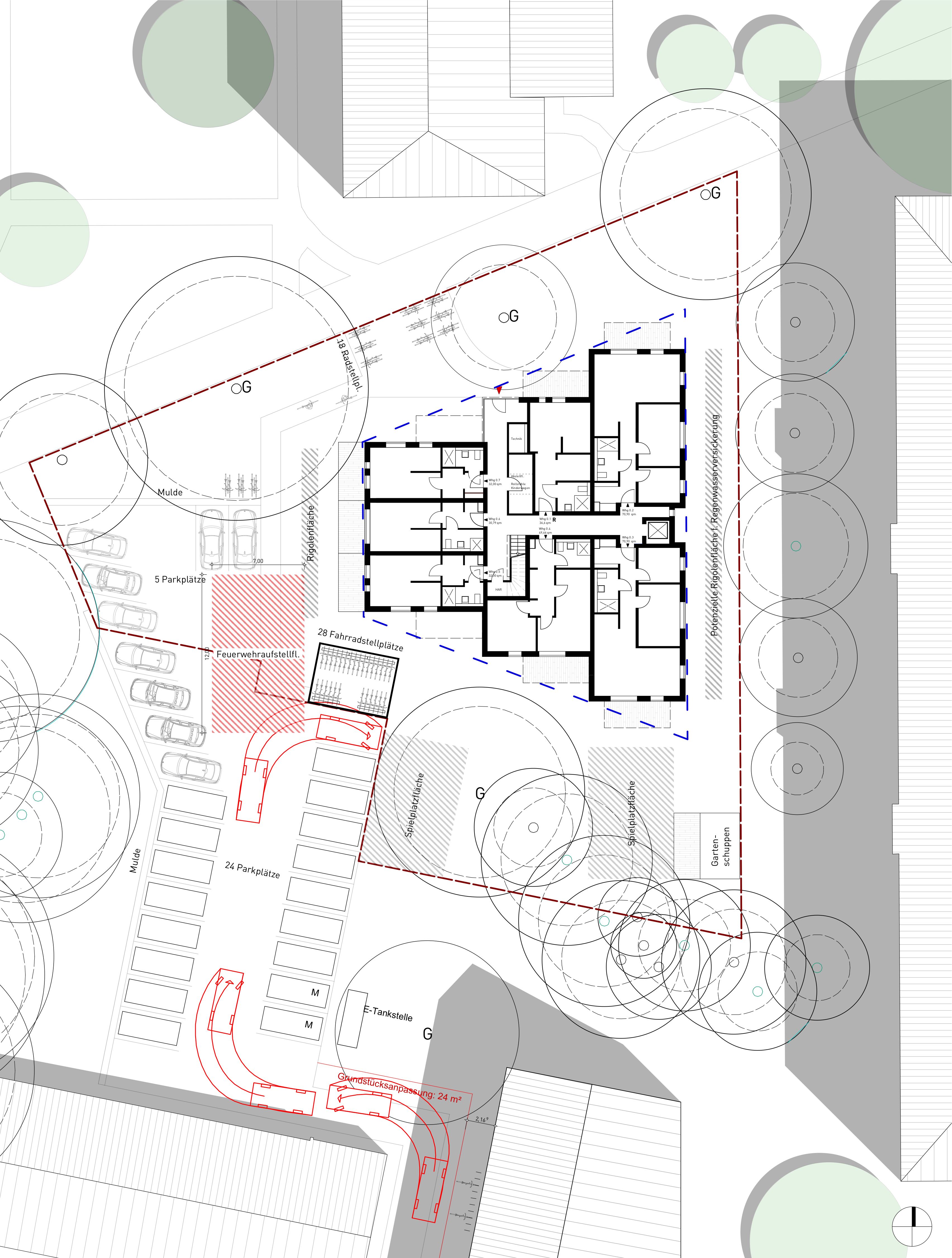
Im sozial-ökologischen Modellquartier Ellener Hof realisierten wir den Neubau "Kastanienhof" mit 18 Wohneinheiten. Das in Holzrahmenbauweise errichtete Gebäude steht inmitten eines alten Baumbestands und fügt sich perfekt in die vorhandenen Strukturen ein. Das Haus der Gebäudeklasse 3 ist an das Fernwärmenetz angeschlossen und erreicht Effizienzhaus 40 Standards.
